1. Home
  2. Search Listings
  3. 1117 Waterway Lane Delray Beach, FL - 33483
  • MLS® #: RX-11155014
  • 1117 Waterway Lane
  • Delray Beach, FL 33483
  • $5,300,000
  • 4 Beds, 5 Bath, 4,096 SqFt
  • Residential

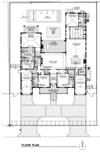
Rarely available and exceptionally positioned, this is a truly turnkey opportunity to begin construction on an extraordinary custom coastal residence in one of Delray Beach's most sought-after beachside neighborhoods. Offered is a substantially cleared and prepped 100' x 140' lot with approved building plans and a premier builder already in place, eliminating years of planning, design, and permitting. Thoughtfully designed for single-story living with expansive indoor-outdoor spaces, this offering allows the next owner to step seamlessly into construction while still retaining the freedom to personalize finishes and create a one-of-a-kind retreat just moments from the ocean and Atlantic Avenue.

View Virtual Tour

Essential Information

  • MLS® #RX-11155014
  • Price$5,300,000
  • CAD Dollar$7,259,543
  • UK Pound£3,928,561
  • Euro€4,494,766
  • Bedrooms4
  • Bathrooms5.00
  • Full Baths4
  • Half Baths1
  • Square Footage4,096
  • Year Built2027
  • TypeResidential
  • Sub-TypeSingle Family Detached
  • RestrictionsNone
  • StatusActive
  • HOPANo Hopa

Community Information

  • Address1117 Waterway Lane
  • Area4140
  • SubdivisionWATERWAY LN IN
  • CityDelray Beach
  • CountyPalm Beach
  • StateFL
  • Zip Code33483

Amenities

  • AmenitiesNone
  • ParkingGarage - Attached
  • # of Garages2
  • WaterfrontNone
  • Has PoolYes
  • PoolHeated, Inground
  • Pets AllowedYes

Utilities

Electric, Gas Natural, Public Sewer, Public Water

Interior

  • HeatingCentral
  • CoolingCentral
  • # of Stories1
  • Stories1.00

Interior Features

Ctdrl/Vault Ceilings, Kitchen Island, Pantry, Split Bedroom, Volume Ceiling, Walk-in Closet

Appliances

Auto Garage Open, Dishwasher, Dryer, Freezer, Range - Gas, Refrigerator, Washer

Exterior

  • Lot Description1/4 to 1/2 Acre
  • ConstructionCBS
  • Office: Hutchison Real Estate Co

Property Location

Please provide a valid email address.

1117 Waterway Lane on www.jupiterwaterfront.us

Offered at the current list price of $5,300,000, this home for sale at 1117 Waterway Lane features 4 bedrooms and 5 bathrooms. This real estate listing is located in WATERWAY LN IN of Delray Beach, FL 33483 and is approximately 4,096 square feet. 1117 Waterway Lane is listed under the MLS ID of RX-11155014 and has been available through www.jupiterwaterfront.us for the Delray Beach real estate market for 34 days.

Similar Listings to 1117 Waterway Lane

Photo of Listing #RX-11158681
  • MLS® #: RX-11158681
  • 913 Denery Lane
  • Delray Beach, FL 33483
  • $5,495,000
  • 5 Bed, 6 Bath, 5,015 SqFt
  • Residential
Add as Favorite
Photo of Listing #RX-11083291
  • MLS® #: RX-11083291
  • 960 Dogwood Drive
  • Delray Beach, FL 33483
  • $5,650,000
  • 5 Bed, 7 Bath, 6,079 SqFt
  • Residential
Add as Favorite
Photo of Listing #RX-11126693
  • MLS® #: RX-11126693
  • 933 Allamanda Drive
  • Delray Beach, FL 33483
  • $5,495,000
  • 6 Bed, 7 Bath, 4,507 SqFt
  • Residential
Add as Favorite
Photo of Listing #RX-11127319
  • MLS® #: RX-11127319
  • 812 Palm Trail
  • Delray Beach, FL 33483
  • $5,250,000
  • 5 Bed, 6 Bath, 4,813 SqFt
  • Residential
Add as Favorite

All listings featuring the BMLS logo are provided by Beaches MLS Inc. Copyright 2026 Beaches MLS. This information is not verified for authenticity or accuracy and is not guaranteed.
© 2026 Beaches Multiple Listing Service, Inc. All rights reserved.

Listing information last updated on February 19th, 2026 at 8:48pm CST.