1. Home
  2. Search Listings
  3. 2340 R J Hendley Avenue Riviera Beach, FL - 33404
  • MLS® #: RX-11157700
  • 2340 R J Hendley Avenue
  • Riviera Beach, FL 33404
  • $399,000
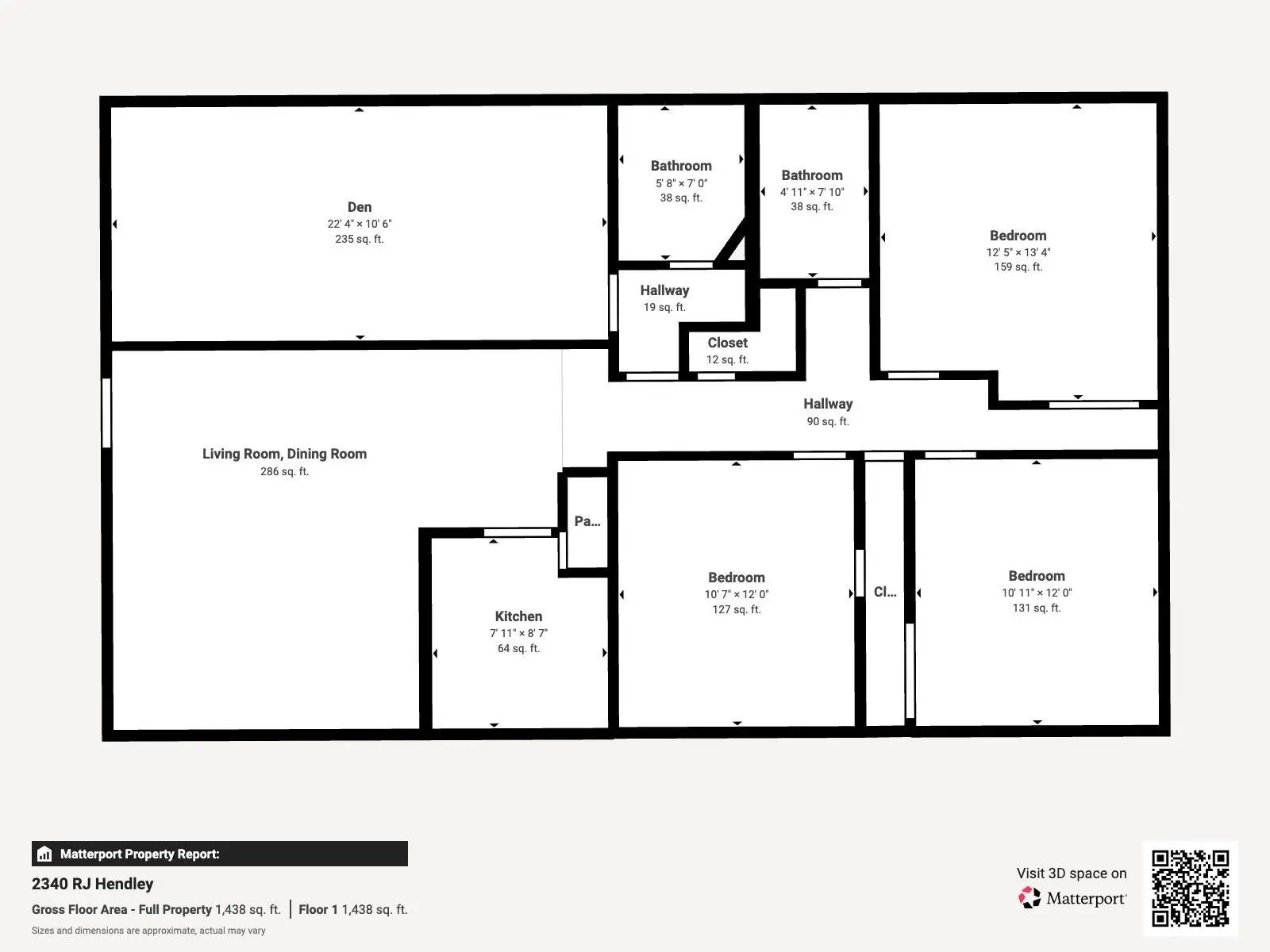
  • 4 Beds, 2 Bath, 1,392 SqFt
  • Residential

Spacious 3 bedroom plus oversized DEN, 2 bathroom, CBS home on a private 0.18 acre lot, NO HOA! There is BRAND NEW ROOF (2026), new LVP flooring in the living room and kitchen (2025), and tile flooring in bedrooms and den. The kitchen was renovated and it is equipped with granite counter tops, low profile microwave, gas stove and shaker cabinets. Notable features include new fire rated impact front and side doors (2025), painted exterior (2024), newer electrical panel (2022), no popcorn, newer toilets and vanities, and tankless water heater (2023). Washer and dryer are inside. Head out to enjoy a fenced-in backyard with plenty of room for a pool. The home is equipped with an alarm and security cameras. The garage was converted into living space. The home is just a short ride away from

View Virtual Tour

Essential Information

  • MLS® #RX-11157700
  • Price$399,000
  • CAD Dollar$546,891
  • UK Pound£295,760
  • Euro€338,659
  • Bedrooms4
  • Bathrooms2.00
  • Full Baths2
  • Square Footage1,392
  • Year Built1980
  • TypeResidential
  • Sub-TypeSingle Family Detached
  • RestrictionsNone
  • StyleRanch
  • Unit Floor1
  • StatusActive
  • HOPANo Hopa

Community Information

  • Address2340 R J Hendley Avenue
  • Area5280
  • SubdivisionMONROE HEIGHTS
  • DevelopmentMONROE HEIGHTS
  • CityRiviera Beach
  • CountyPalm Beach
  • StateFL
  • Zip Code33404

Amenities

  • Parking2+ Spaces, Driveway
  • ViewGarden
  • WaterfrontNone
  • Pets AllowedYes

Amenities

Bike - Jog, Sidewalks, Street Lights

Utilities

Cable, Electric, Gas Natural, Public Sewer, Public Water

Interior

  • Interior FeaturesEntry Lvl Lvng Area
  • HeatingCentral, Electric
  • CoolingCeiling Fan, Central, Electric
  • # of Stories1
  • Stories1.00

Appliances

Dishwasher, Disposal, Dryer, Microwave, Range - Gas, Refrigerator, Washer, Water Heater - Elec

Exterior

  • Exterior FeaturesAwnings, Fruit Tree(s)
  • WindowsDrapes
  • RoofComp Shingle
  • ConstructionCBS

Lot Description

< 1/4 Acre, Paved Road, Public Road, Sidewalks

School Information

  • MiddleJohn F. Kennedy Middle School
  • HighPalm Beach Gardens High School

Elementary

Dr. Mary Mcleod Bethune Elementary

  • Office: Redfin Corporation

Property Location

Please provide a valid email address.

2340 R J Hendley Avenue on www.jupiterwaterfront.us

Offered at the current list price of $399,000, this home for sale at 2340 R J Hendley Avenue features 4 bedrooms and 2 bathrooms. This real estate listing is located in MONROE HEIGHTS of Riviera Beach, FL 33404 and is approximately 1,392 square feet. 2340 R J Hendley Avenue is listed under the MLS ID of RX-11157700 and has been available through www.jupiterwaterfront.us for the Riviera Beach real estate market for 28 days.

Similar Listings to 2340 R J Hendley Avenue

Photo of Listing #RX-11154778
  • MLS® #: RX-11154778
  • 2634 W 28th Street
  • Riviera Beach, FL 33404
  • $369,000
  • 3 Bed, 2 Bath, 1,125 SqFt
  • Residential
Add as Favorite
Photo of Listing #RX-11141257
  • MLS® #: RX-11141257
  • 430 W 25th Street
  • Riviera Beach, FL 33404
  • $397,000
  • 5 Bed, 2 Bath, 1,900 SqFt
  • Residential
Add as Favorite
Photo of Listing #RX-11150296
  • MLS® #: RX-11150296
  • 1549 W 19th Street
  • Riviera Beach, FL 33404
  • $425,000
  • 3 Bed, 2 Bath, 1,667 SqFt
  • Residential
Add as Favorite
Photo of Listing #RX-11162273
  • MLS® #: RX-11162273
  • 849 W 2nd Street
  • Riviera Beach, FL 33404
  • $369,000
  • 4 Bed, 2 Bath, 1,296 SqFt
  • Residential
Add as Favorite

All listings featuring the BMLS logo are provided by Beaches MLS Inc. Copyright 2026 Beaches MLS. This information is not verified for authenticity or accuracy and is not guaranteed.
© 2026 Beaches Multiple Listing Service, Inc. All rights reserved.

Listing information last updated on February 23rd, 2026 at 9:34pm CST.